Hinweis für Starter: Bitte beachtet, dass wir über die Festtage vom 22. Dezember 2025 - 5. Januar 2026 eine verlängerte Antwortzeit haben. Es kann bis zu 7 Werktage dauern, bis wir dein Projekt/Organisation prüfen können.

Diese Website verwendet Cookies. Mit der Nutzung der Website stimmst du dem Einsatz von Cookies zu. Mehr erfahren

Abstimmungscode aktiv:
Der eingegebene Code ist ungültig
Der Code wurde bereits für ein Projekt bzw. für eine Organisation verwendet. Anzeigen
Deine Stimme wurde bereits abgegeben

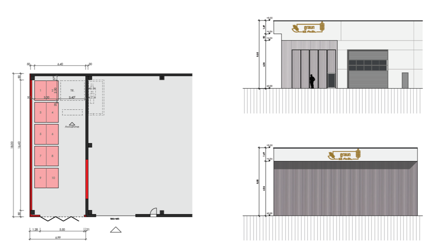
Neue Getreidesammelstelle und -Trocknungsanlage

Ein Projekt aus der Region der Raiffeisenbank Engiadina Val Müstair

Die Produktion von Getreide im Val Müstair hat eine lange Tradition. Sie trägt zur Biodiversität, Landschaftsqualität und somit der Schönheit des Val Müstair bei. Die Sammelstelle und Trocknungsanlage sind für den Anbau von zentraler Bedeutung. Eine den heutigen Ansprüchen entsprechende Getreidesammelstelle zu errichten, das ist das Ziel des Vereins Graun Val Müstair, welcher sich für den Erhalt des Getreidebaus im Val Müstair einsetzt.

CHF 65’800
CHF 50’000
Mindestbetrag
CHF 80’000
Wunschbetrag
213
Unterstützungen

Nachfolgende Unterstützungen konnten am Projekt gewählt werden

Projektblog

Einweihungsfeier

Janic Fasser
Janic Fasser
4. April 2023

Am 06. Mai 2023 findet im Rahmen der regionalen Viehschau Val Müstair auch die Einweihung der neuen Getreidesammelstelle statt, wo alle Unterstützer und weitere Interessierte herzlich willkommen sind. Wir möchten diesen Tag nutzen, um allen Beteiligten, Spendern und weitere Interessierten die fertige Sammelstelle zu zeigen und diesen Meilenstein gemeinsam zu feiern. Nur dank euch allen konnte dieses wichtige Projekt für das Val Müstair realisiert werden. Die Getreideproduktion ist sehr wichtig für das Tal, sowohl für die regionalen Kreisläufe, wie auch für den Erhalt unserer wertvollen Kulturlandschaft. Die Viehschau in Müstair mit verschiedenen weiteren Attraktionen beginnt um 09:00 und dauert bis ca. 17:00. Der offizielle Teil inkl. Ansprachen für die Getreidesammelstelle findet zwischen 11:00 und 13:00 statt. Wir würden uns über einen Besuch freuen Chars salüds da la Val Müstair La società Graun Val Müstair

Lesen

Aufstellen der Getreidesilos

Janic Fasser
Janic Fasser
27. Mai 2022

Alle Bewilligungen sind durch und wir konnten endlich anfangen, die Getreidesilos aufzubauen. Die Arbeit konnte hauptsächlich durch die Vereinsmitglieder, also Getreidebauern gemacht werden. Damit ist der Start in die Bauphase gut gelungen. Nachher muss noch eine Pannell-Wand angebracht und die Getreidetrocknung installiert werden. Auch die elektrischen- und Umgebungsarbeiten müssen natürlich noch gemacht werden, bevor Ende August/ Anfang September dann das erste Getreide angenommen werden kann. Vielen Dank nochmals allen Unterstützern. Ohne euch wäre dies nicht möglich geworden. Wir werden euch weiter auf dem laufenden halten.

Lesen

Auf der Schwelle, jetzt ans Ziel!

Janic Fasser
Janic Fasser
20. Oktober 2021

In den letzten 80 Tagen haben wir es geschafft die CHF 50'000 zu sammeln um dem Getreidebau im Val Müstair und der Kulturlandschaft eine goldene Zukunft zu geben! Das ist eine unglaubliche Leistung! Hiermit ein RIESIGES Dankeschön an alle, die die Getreidesammelstelle schon unterstützt haben und noch unterstützen werden. Mit dem Erreichen des wichtigen Meilensteins von CHF 50'000 steht fest: Die Getreidesammelstelle wird erstellt!

Lesen

Neuer Meilenstein erreicht!

Janic Fasser
Janic Fasser
30. September 2021

Dank verschiedener grösserer und kleinerer Spenden von Einheimischen und Externen haben wir heute die Marke von CHF 35'000 überschritten. Auch unser Partner, der Naturpark Biosfera Val Müstair, konnte für uns werben und noch Spenden und Drittmittel für uns einholen. Wir danken allen Spendern und bitten euch, weiterhin Werbung zu machen, damit wir in den verbleibenden 30 Tagen unser Finanzierungsziel erreichen können!

Lesen

Jetzt kommt das Getreide rein!

Janic Fasser
Janic Fasser
16. September 2021

Vor kurzem hat bei uns im Val Müstair die Getreideernte angefangen und wir sind voller Elan dabei die wertvollen Körner sicher ins Trockene zu bringen. Dieses Jahr war ein nasses Jahr und somit ein bisschen eine Challage, das Getreide bei guten Bedingungen zu ernten. Um so wichtiger ist es, dass wir eine gute, funktionierende Sammelstelle haben, wo wir unser Getreide lagern können bis es die Mühle und der Beck brauchen. Wir danken für jede Spende und bitten euch das Projekt noch weiter zu teilen und es potenziellen Spendern weiterzusagen. Vielen Dank!

Lesen

20'000 CHF Schwelle erreicht!

Janic Fasser
Janic Fasser
8. September 2021

Wir sind nun bei über CHF 20'000 angelangt und haben damit schon über 40% der Finanzierungsschwelle erreicht. Für eure Unterstützung danken wir euch vielmals! Jetzt gilt es weiterhin Vollgas zu geben, um unser Ziel von CHF 80'000 zu erreichen. Motiviert eure Familie, Freunde und Fans des Val Müstair das Projekt Getreidesammelstelle zu unterstützen. Grazia fich

Lesen

Ein guter Start

Janic Fasser
Janic Fasser
13. August 2021

Hallo liebe Freunde des Getreidebaus im Val Müstair Wir haben gut gestartet und innert 10 Tagen schon über CHF 10'000 gesammelt. Jetzt gilt es, dieses Tempo beizubehalten, damit wir unser Finanzierungsziel von CHF 80'000 erreichen können. Motiviert eure Familie, Freunde und Fans des Val Müstair das Projekt Getreidesammelstelle Val Müstair zu unterstützen.

Lesen

100er- Marke geknackt!

Janic Fasser
Janic Fasser
4. August 2021

Juhuuii, schon nach 3 Tagen (am Samstag) haben wir die 100 Fans Marke geknackt! Vielen Dank für die grossartige Unterstützung! Jetzt gilt es Ernst. Unterstützt unser Projekt, indem ihr ein Merci Paket kauft und Werbung für die Getreidesammelstelle Val Müstair macht.

Lesen

Projektierung, Finanzierung

Janic Fasser
Janic Fasser
30. Juli 2021

Die Projektplanung ist Mitte Juni 2021 vollendet. Der Kostenvoranschlag gemäss Offerten steht. Für die Finanzierung wurde neben Eigenmitteln, Eigenleistung, Subvention auch noch Stiftungen angefragt. Trotz allem bleibt noch ein Fehlbetrag und der Verein entscheidet sich ein Crowd-Funding zu machen. Wir machen uns daran einen Film zu produzieren und die Projektseite zu gestalten.

Lesen

Teil des PRE Val Müstair

Janic Fasser
Janic Fasser
1. Oktober 2017

Die Getreidesammelstelle wurde im Oktober 2017 als Teil des PRE Val Müstair aufgenommen. Dadurch wird das Projekt von Bund und Kanton unterstützt. Trotzdem fehlen noch 4/5 der benötigten Mittel, um das Projekt realisieren zu können.

Lesen

Nachfolgende Unterstützungen konnten am Projekt gewählt werden