Hinweis für Starter: Bitte beachtet, dass wir über die Festtage vom 22. Dezember 2025 - 5. Januar 2026 eine verlängerte Antwortzeit haben. Es kann bis zu 7 Werktage dauern, bis wir dein Projekt/Organisation prüfen können.

Diese Website verwendet Cookies. Mit der Nutzung der Website stimmst du dem Einsatz von Cookies zu. Mehr erfahren

Abstimmungscode aktiv:
Der eingegebene Code ist ungültig
Der Code wurde bereits für ein Projekt bzw. für eine Organisation verwendet. Anzeigen
Deine Stimme wurde bereits abgegeben

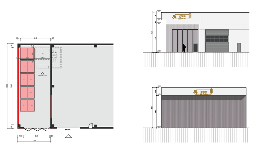
Neue Getreidesammelstelle und -Trocknungsanlage

Ein Projekt aus der Region der Raiffeisenbank Engiadina Val Müstair

Die Produktion von Getreide im Val Müstair hat eine lange Tradition. Sie trägt zur Biodiversität, Landschaftsqualität und somit der Schönheit des Val Müstair bei. Die Sammelstelle und Trocknungsanlage sind für den Anbau von zentraler Bedeutung. Eine den heutigen Ansprüchen entsprechende Getreidesammelstelle zu errichten, das ist das Ziel des Vereins Graun Val Müstair, welcher sich für den Erhalt des Getreidebaus im Val Müstair einsetzt.

CHF 65’800
CHF 50’000
Mindestbetrag
CHF 80’000
Wunschbetrag
213
Unterstützungen

Nachfolgende Unterstützungen konnten am Projekt gewählt werden

Finanzierungszeitraum 02.08.2021 09:45 Uhr - 15.11.2021 23:59 Uhr
Realisierungszeitraum November 2021 bis August 2022

Als Teil eines Regionalentwicklungsprojekts ist das Projekt zur Erneuerung der Getreidesammelstelle und -Trocknungsanlage eine wichtige Voraussetzung für die weitere Produktion von Getreide im Val Müstair. Wenn es gelingt, diese Anlage zu erneuern, ist dies eine wichtige Grundlage für eine nachhaltige und regionale Produktion. Neben Getreideprodukten wie dem Roggenbrot können auch Fleischprodukte (der regionale Schlachthof ist seit April 2021 in Betrieb) und Milchprodukte (die regionale Käserei wurde auch erneuert) im Val Müstair produziert werden.
Sehr wichtig ist auch der Erhalt der Kulturlandschaft – ohne Getreidefelder würde sich diese komplett verändern. Dies gilt es zu verhindern.

Der Getreideanbau hat eine lange Tradition im Val Müstair und prägt die vielfältige alpine Kulturlandschaft. Der Bauernhof des Unesco Welterbe-Klosters St. Johann ist bis heute einer der grössten Getreideproduzenten im Tal, der sich auch um den Erhalt von alten Sorten bemüht.
Mit Gran Alpin besteht eine wichtige Partnerschaft. Das Getreide aus dem Val Müstair macht rund 10% des Getreides aus, das über Gran Alpin verarbeitet wird. Die Bäckereien im Val Müstair sind ebenfalls auf einheimisches Getreide angewiesen, um die regionalen Spezialitäten weiterhin mit einheimischem Mehl produzieren zu können.
Die Erneuerung der Getreidesammelstelle und -Trocknungsanlage ermöglicht auch in Zukunft den Anbau von Getreide im Val Müstair. So kann die Kulturlandschaft erhalten werden, dies ist auch ein wichtiger Faktor für den Tourismus. Denn die Gäste, die ins Val Müstair kommen, suchen einen intakten, alpinen Naturraum. Dieser ist unser Kapital, zu dem wir – auch dank dieses Projekts – Sorge tragen wollen.

Das Val Müstair ist als Naturpark eine Modellregion für nachhaltige Entwicklung. Mit Ihrer Unterstützung für das Projekt der neuen Getreidesammelstelle und -Trocknungsanlage ermöglichen Sie, dass weiterhin ein regionaler Kreislauf in der Getreideproduktion stattfindet. Und Sie tragen dazu bei, die einzigartige und intakte Kulturlandschaft des Val Müstair zu erhalten.

Wenn die Finanzierung erfolgreich ist, erreichen die Bauern von «Graun Val Müstair» ihr Ziel, eine neue Getreidesammelstelle und -Trocknungsanlage errichten zu können. Zur Finanzierung des gesamten Projekts sind weitere Partner und Stiftungen mit an Bord.

Finanzierungsschwelle:
Jede Spende hilft uns, das gesamte Projekt zusammen mit den anderen Partnern zu finanzieren.

Finanzierungsziel:
Mit Erreichen des Finanzierungsziels ist die Finanzierung des gesamten Projekts sichergestellt.

Mindestbetrag

Wenn wir die Finanzierungsschwelle erreichen, können wir loslegen und die Getreidesammelstelle an ihrem neuen Ort aufbauen.

Wunschbetrag

Dieser ambitionierte Betrag würde uns die Finanzierung komplett sichern und wir könnten die Getreidesammelstelle komplett ohne belastendes Fremdkapital errichten.

Hinter dem Projekt steht in erster Linie der Verein «Graun Val Müstair», der Zusammenschluss der Bauern, die im Val Müstair Getreide produzieren. Das Projekt ist aber eingebettet in ein Regionalentwicklungsprojekt. Dieses hat zum Ziel, die Grundlagen für die landwirtschaftliche Produktion im Val Müstair sicherzustellen: Neben der Getreideproduktion werden im Val Müstair auch Fleischprodukte und Milchprodukte hergestellt – alles in regionalen Produktions- und Wertschöpfungsketten. Somit sind alle Bauern unter dem Dach der «Agricultura Val Müstair» bei diesem Projekt involviert.
Hinter dem Projekt steht ausserdem zur Unterstützung auch der regionale Naturpark Biosfera Val Müstair.

Bilder in Galerie von Danuser, Bilderwelt Val Müstair

Graun Val Müstair
4. April 2023

Einweihungsfeier

Am 06. Mai 2023 findet im Rahmen der regionalen Viehschau Val Müstair auch die Einweihung der neuen Getreidesammelstelle statt, wo alle Unterstützer und weitere Interessierte herzlich willkommen sind. Wir möchten diesen Tag nutzen, um allen Beteiligten, Spendern und weitere Interessierten die fertige Sammelstelle zu zeigen und diesen Meilenstein gemeinsam zu feiern. Nur dank euch allen konnte dieses wichtige Projekt für das Val Müstair realisiert werden. Die Getreideproduktion ist sehr wichtig für das Tal, sowohl für die regionalen Kreisläufe, wie auch für den Erhalt unserer wertvollen Kulturlandschaft. Die Viehschau in Müstair mit verschiedenen weiteren Attraktionen beginnt um 09:00 und dauert bis ca. 17:00. Der offizielle Teil inkl. Ansprachen für die Getreidesammelstelle findet zwischen 11:00 und 13:00 statt. Wir würden uns über einen Besuch freuen Chars salüds da la Val Müstair La società Graun Val Müstair

Mehr im Projekt-Blog lesen

1 Kommentar

Wir uns auch. Vielen Dank!

Janic Fasser
Janic Fasser
7. Oktober 2021 um 10:33
Wird geladen...

Partner