Diese Website verwendet Cookies. Mit der Nutzung der Website stimmst du dem Einsatz von Cookies zu. Mehr erfahren

Abstimmungscode aktiv:
Der eingegebene Code ist ungültig
Der Code wurde bereits für ein Projekt bzw. für eine Organisation verwendet. Anzeigen
Deine Stimme wurde bereits abgegeben

Pfadiheim 2020

Die Pfadi Meggen (Kanton Luzern) benötigt dringend ein den aktuellen Bedürfnissen entsprechendes, saniertes Pfadiheim.
Eine Renovation des 1994 erbauten Baracken-Baus ist aufgrund der Witterung, der fehlenden Isolationen sowie der Baufälligkeit vom Dach und einigen maroden Trägerbalken nun akut.
Projektdossier

CHF 68’586
CHF 60’000
Mindestbetrag
CHF 80’000
Wunschbetrag
109
Unterstützungen

Nachfolgende Unterstützungen konnten am Projekt gewählt werden

Finanzierungszeitraum 08.10.2018 07:51 Uhr - 03.01.2019 00:00 Uhr
Realisierungszeitraum Juni 2019

Wir von der Projektgruppe "Pfadiheim2020" vom Pfadiheimverein Meggen (PHVM) haben uns zum Ziel gesetzt, das bestehende und baufällige Pfadiheim im Balmtobel in Meggen zu sanieren. Das gesamte Umbauprojekt kann mit dem Eigenkapital sowie den Mitgliederbeiträgen der Pfadi Meggen nicht vollständig finanziert werden.
Mit dem Crowdfunding von lokalhelden.ch möchten wir Ihren Unterstützungsbeitrag zum Umbauprojekt ersuchen.

Im Projektdossier auf unserer Homepage pfadiheim2020.ch weisen wir auf weitere Kapitalgeber hin, mit welchen wir zusätzliche Gelder generieren möchten.

Die Pfadi Meggen organisiert drei mal im Monat einen Samstagnachmittag voller Spiel, Spass und Abenteuer für Kinder und Jugendliche ab dem Kindergarten bis zur 8. Klasse. Es werden Aktivitäten wie Seilbrücken, Kochübungen, Schatzsuchen und vieles mehr zusammen unternommen.
Im Sommer und Herbst führt die Pfadi ein zwei wöchiges bzw. viertägiges Lager durch. Die Teilnehmer erhalten dadurch die Möglichkeit mit Gleichaltrigen eine tolle Zeit zu erleben.
Das Pfadiheim bietet primär den Pfadis eine Alternative für ihre Samstagsaktivitäten. Es bietet zudem Platz für Höcks, Leiterausbildungen und Lagervorbereitungen.

Weitere Informationen finden Sie unter pfadimeggen.ch.

Wir sind auf die finanzielle sowie tatkräftige Unterstützung aller Unterstützer und Pfadibegeisterten angewiesen. Denn nur zusammen kann ein solches Projekt erfolgreich realisiert werden.

In der heutigen Gesellschaft ist es ungemein wichtig, dass Non-Profit-Organisationen wie die Pfadi Meggen finanzielle Unterstützungen erhalten. Die Mitgliederbeiträge decken lediglich die Kosten für den Unterhalt des Pfadiheims sowie die Aktivitäten im laufenden Jahr. Damit die Pfadi sowie das Leitungsteam über längere Zeit erfolgreich agieren können, benötigen sie konkrete Ressourcen wie dieses Pfadiheim.

Mit Ihrem Beitrag werden Teile der Sanierung finanziert.
Für die vollumfängliche Realisierung des Gesamtprojekts bedarf es weiteren Unterstützern. Nebst der Gemeinde Meggen und den Kirchgemeinden versuchen wir auch lokale Stiftungen für unser Projekt zu begeistern.
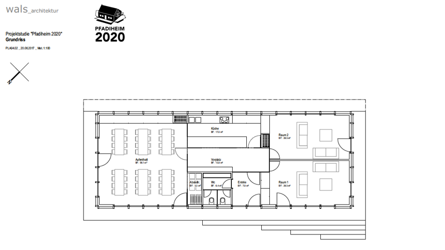
Die Kostenaufstellung mit dem geplante Baukostenplan ist im Projektdossier ersichtlich.
Was mit Ihrem gespendeten Geld genau passiert, können Sie ebenfalls dem Dossier entnehmen.

Wunschbetrag

Mit der Erreichung vom 2. Finanzierungsziel ermöglichen wir der Pfadi Meggen ein vollumfänglicher Ausbau sowie die Beschaffung von zusätzlichen Inneneinrichtungen.

Hinter dem Projekt stehen folgende gemeinnützige Organisationen/ Vereine:


  • Pfadi Meggen (Buben- und Mädchen-Pfadi)

Seit mehr als 60 Jahren ist die Pfadfinderbewegung auch in Meggen aktiv. Zuerst nur mit der Bubenpfadi Habsburg und seit 1973 auch mit der Mädchenpfadi Häxebach. Seit 2012 können auch die Jüngsten als Biber in die Pfadi eintreten.

  • Pfadiheimverein Meggen

Der Pfadiheimverein Meggen wurde 1988 gegründet.
Durch die Statutenänderung im 2011 blieb jedoch der Zweck des Vereins erhalten. Der Verein setzt sich für den Bau und den Unterhalt des eigenen Pfadiheims für die Pfadfinderinnen und Pfadfinder der Pfadi Meggen ein.
Der Vorstand beschloss die Projektgruppe Pfadiheim2020 zu ernennen und geeignete Projektmitglieder mit der Sanierung zu beauftragen.

  • APV Meggen (Altpfadfinderverein Meggen)

Im Jahr 1992 wurde der APV Habsburg für die Ehemaligen der Bubenpfadi gegründet. Anlässlich der Fusion der Pfadi Häxebach und Pfadi Habsburg wurde der Verein im November 2014 zum APV Meggen umbenannt. Seit dann können alle Ehemaligen der Megger Pfadis dem Altpfaderverein Meggen beitreten.
Er hat zum Zweck den Kontakt unter den Ehemaligen der Pfadi Meggen zu fördern und die Pfadi Meggen in geeigneter Form zu unterstützen.

27. Februar 2021

Virtueller Rundgang & Projekt-Shop - jetzt online!

Lassen Sie sich vom aktuellen Stand im Bauvorhaben Pfadiheim2020 inspirieren und nehmen Sie an unserer virtuellen Begehung teil! Der Boden ist am trocken und die Holzbauarbeiten sind fast abgeschlossen. Auch sind die Rohinstallationen fertig. Die weitere Vergabe gerät nun ins Stocken, da zusätzliche finanzielle Mittel fehlen. Mit unserem neuen Projekt-Shop können konkrete Anteile an den noch offenen Positionen vom Baukostenplan BKP gespendet werden. Mit neuen Visualisierungen geben wir Ihnen mehr Einblicke in die Planung. Auch ohne Spende ist der Besuch ein Klick wert!

Mehr im Projekt-Blog lesen

Virtueller Rundgang & Projekt-Shop - jetzt online!
4 Kommentare

Uns freut es sehr, dass so viele Unterstützer hinter unserem Projekt stehen. Vielen Dank. Wir danken zudem herzlich der Raiffeisenbank Adligenswil-Udligenswil-Meggen für die Spende.

Yanik Bommes
Yanik Bommes
25. Oktober 2018 um 08:54

Die Raiffeisenbank Adligenswil-Udligenswil-Meggen freut sich riesig, wird mit Pfadiheim 2020 nun bereits das 2. Projekt in unserem Geschäftskreis über die tolle Raiffeisen Crowdfunding Plattform "lokalhelden.ch" finanziert. Wir wünschen Euch viel Erfolg und unzählige weitere Unterstützer. Unsere Spende ist unterwegs zu Euch.

Raiffeisenbank Adligenswil-Udligenswil-Meggen
24. Oktober 2018 um 11:26

Cooles Projekt, die Pfäderlis werden sich freuen. Ich spende natürlich und hoffe auf ein gutes Gelingen :-)

AN
Anderson Notter
3. Oktober 2018 um 20:20

Alle anzeigen

Wird geladen...