Hinweis für Starter: Bitte beachtet, dass wir über die Festtage vom 22. Dezember 2025 - 5. Januar 2026 eine verlängerte Antwortzeit haben. Es kann bis zu 7 Werktage dauern, bis wir dein Projekt/Organisation prüfen können.

Diese Website verwendet Cookies. Mit der Nutzung der Website stimmst du dem Einsatz von Cookies zu. Mehr erfahren

Abstimmungscode aktiv:
Der eingegebene Code ist ungültig
Der Code wurde bereits für ein Projekt bzw. für eine Organisation verwendet. Anzeigen
Deine Stimme wurde bereits abgegeben
CHF 1’970 Unterstützung durch Raiffeisen

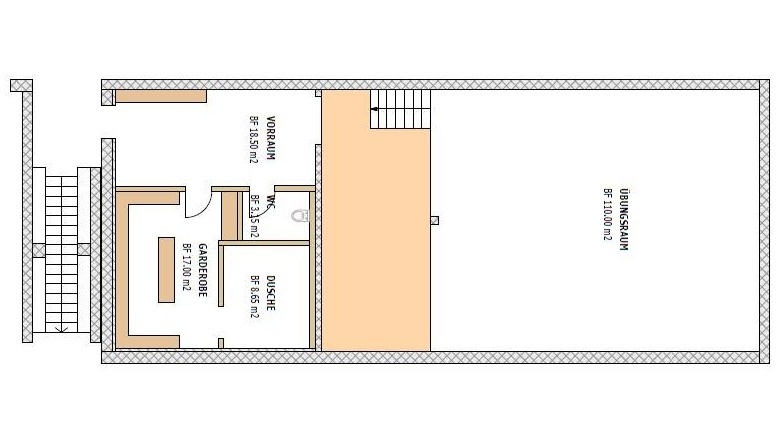
Bau eines neuen Schwingkellers

Ein Projekt aus der Region der Raiffeisenbank Worblen-Emmental

Da der bestehende Schwingkeller bereits in die Jahre gekommen ist, müsste dieser renoviert werden. Jedoch, wäre ein brandschutzkonformer Umbau dessen, sehr kostenintensiv. Folge dessen, haben wir den Bau eines neuen Schwingkellers ins Auge gefasst. Nebst des besseren Baustandards, kann man auch in Sachen Kapazität, einen Schritt nach vorne machen. So soll man auch zukünftig, für alle Schwinger optimale Trainingsbedingungen gewährleisten können.

Weitere Informationen unter: https://www.schwingklub-worblental.ch/schwingkeller/

CHF 46’410
CHF 25’000
Mindestbetrag
CHF 95’000
Wunschbetrag
84
Unterstützungen

Kampagnen

Nachfolgende Unterstützungen konnten am Projekt gewählt werden

Finanzierungszeitraum 14.11.2022 15:39 Uhr - 12.02.2023 23:59 Uhr
Realisierungszeitraum Anfang 2022 bis Ende 2023

Der regional verankerte Schwingklub Worblental will ein neues Zuhause für seine Schwinger bauen.

Das Ziel ist es, für unsere Jung- sowie Aktivschwinger einen neuen Schwingkeller zur Verfügung zu stellen, wo sie sich optimal auf die Wettkämpfe vorbereiten können.

Der Schwingklub wurde im Jahr 1962 gegründet und ist seither eine Anlaufstelle für alle Schwingbegeisterten der Umgebung. Dies soll auch in Zukunft so bleiben. Wie in den letzten Jahren gesehen, nimmt die Anerkennung des Schwingsport stetig zu und die Anzahl der im Training vertretenen Schwinger steigt. Da wir jeden willkommen heissen wollen, der gerne einen Teil unserer Schwingfamilie werden will, sind wir auf mehr Platz angewiesen.

Das Geld dient der Finanzierung des Baus. Wir erhalten zwar von diversen Ämtern einen Beitrag in den Spendentopf, jedoch ist dies nicht ausreichend. Somit sind wir auf die Mittel angewiesen, welche über diese Plattform gesammelt werden können.

Mindestbetrag

Mit diesem Betrag können wir bei weitem noch nicht das ganze Projekt finanzieren. Nichts desto trotz, würde uns diese Summe bereits sehr weiterhelfen. Mit dem Betrag von CHF 25'000.00 könnten bereits die geplanten Elektroanlagen des neuen Schwingkellers finanziert werden.

Wunschbetrag

Bei Erreichung des Finanzierungsziels, haben wir bereits einen grossen Teil der benötigten Mittel zusammen um den Bau zu finanzieren. Dies ist jedoch nur der Anfang, da das Projekt erst nach Abschluss der Bauphase, als erfolgreich gilt! Nebst der finanziellen Unterstützung, sind auch diverse Helfer am Bau beteiligt. Bei Interesse, selber tatkräftige Unterstützung beizusteuern, können sich handwerklich begabte Helfer via: markus.walther@zimmerei-walther.ch melden.

In erster Linie steht der Schwingklub Worblental hinter diesem Projekt. Jedoch übernimmt die Koordination, das für den Bau ins Leben gerufene, Organisationskomitee.

2. Februar 2023

Schlussspurt!

Hallo Zämä Schon sind mehr als 2/3 der "Sammel-Zeit" verstrichen und wir näheren uns langsam der Ziellinie. Um die letzten 10 Tage so erfolgreich wie möglich zu gestalten, bitte ich erneut um eure Unterstützung! Sprecht nochmal alle Personen in eurem Umfeld auf unser Projekt an, um die Finanzierungsschwelle erreichen zu können. Herzlichen Dank! Mit Schwingergruss Franco Galli

Mehr im Projekt-Blog lesen

Wird geladen...