Hinweis für Starter: Bitte beachtet, dass wir über die Festtage vom 22. Dezember 2025 - 5. Januar 2026 eine verlängerte Antwortzeit haben. Es kann bis zu 7 Werktage dauern, bis wir dein Projekt/Organisation prüfen können.

Diese Website verwendet Cookies. Mit der Nutzung der Website stimmst du dem Einsatz von Cookies zu. Mehr erfahren

Abstimmungscode aktiv:
Der eingegebene Code ist ungültig
Der Code wurde bereits für ein Projekt bzw. für eine Organisation verwendet. Anzeigen
Deine Stimme wurde bereits abgegeben

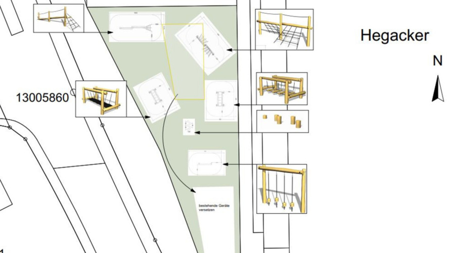
Kinderspielplatz beim Schulareal

Ein Projekt aus der Region der Raiffeisenbank am Eppenberg

Nach langer Planungszeit soll auf dem Schulareal Gretzenbach ein vielseitiger und kreativer Spielplatz errichtet werden. Durch Covid19 konnten viele geplanten Aktivitäten bezüglich finanzieller Unterstützung nicht durchgeführt werden.
Aufgrund des Personenverbotes auf dem Schulareal können wir den Spielplatz nicht selber aufstellen, sowie wurde z.B. auch der Sponsorenlauf abgesagt um Spenden zu sammeln.

CHF 7’400
CHF 5’600
Mindestbetrag
CHF 7’000
Wunschbetrag
45
Unterstützungen

Nachfolgende Unterstützungen konnten am Projekt gewählt werden

Finanzierungszeitraum 21.12.2020 16:54 Uhr - 10.03.2021 23:59 Uhr
Realisierungszeitraum Anfang 2021

Auf dem Schulareal Gretzenbach soll der neue Spielplatz errichtet werden. Das Material für den Spielplatz ist bereits bezahlt und eingetroffen. Der Spielplatz können wir aufgrund Covid19 nicht selber aufstellen, da auf dem Schulareal ein Personenverbot ausgesprochen wurde. Auch der vorbereitete Sponsorenlauf konnte nicht durchgeführt werden. Das Aufbieten einer entsprechenden Firma erhöht nun die Kosten erneut und daher sind wir auf eure Unterstützung angewiesen.

Wir möchten den Kindern im Dorf eine Möglichkeit von einem Spielplatz im Freien bieten. Der Schwerpunkt dieses Platzes liegt in der Bewegung und setzt sich in Kombinationen aus Hängebrücken, Klettergerüsten und Seilen zusammen. Regelmässige Bewegung verbessert nicht nur die Gesundheit, sondern fördert darüber hinaus ganz eindeutig die Leistung des Gehirns und somit auch die Konzentrationsfähigkeit. Durch diese Punkte profitieren natürlich auch alle Kindergarten- und Schulkinder. Der Spielplatz besteht mehrheitlich aus Holz. Holz ist ein Bestandteil der Natur und fügt sich daher gut in die Gestaltung in der Natur ein, ohne besonders hervorzustechen oder zu stören.
Die Kinder haben hier die Möglichkeit alle Geräte zu jeder Zeit zu benutzen.

Der Spielplatz soll Anfang 2021 realisiert werden.

Natürlich weil es um Kinder geht. Die Kinder sollen ein Ort der Begegnung haben, einen Ort der nur für Kinder bestimmt ist. Wir selbst verbinden oft unsere Kindheitserinnerungen mit Spielplätzen, da dieser Ort nur für uns bestimmt war, unser Reich.
Der Spielplatz ist schon lange in Planung und nachdem wir nun die Baubewilligung erhalten haben, soll dem Projekt jetzt nichts mehr im Wege stehen.

*Es gibt kein Alter, in dem alles so irrsinnig intensiv erlebt wird wie in der Kindheit. Wir Grossen sollten uns daran erinnern, wie das war.*

So wird das gespendete Geld verwendet:
- für die Mercis
- Baugesuch und Baugenehmigung
- Firma für das Aufstellen der Geräte
- Reserve für die jährliche Wartung der Geräte

Mindestbetrag

Die Geräte des Spielplatzes wurde bereits durch zahlreiche Spenden finanziert.
Nun geht es darum, dass der Spielplatz durch einen Landschaftsgärtner aufgestellt werden kann.
Die 5000.- werden für die Bezahlung des Landschaftsgerätenrs aus unserer Region benötigt.
600.- gehen zu Lasten des Baugesuches und der Baugenehmigung.

Wunschbetrag

Die Geräte müssen jährlich überprüft werden, dies dient der Sicherheit. Mit dem dem restlichen Betrag kann dies (250.-/Jahr) für fast sechs Jahre finanziert werden.

Der ELETERNdRAHT Gretzenbach.
https://www.schulegretzenbach.ch/elterndraht

3 Kommentare

In den Frühlingsferien konnte die Umsetzung des Projektes Dank des grossen Engagements der vielen freiwillige Helfern und der Unterstützung der Spenden erfolgen. Der Spielplatz ist bei den Kindern sehr beliebt und sie geniessen ihre Pausen noch mehr. In der Juli 2021 Ausgabe vom Gretzenbacher ist die Geschichte zur Entstehung beschrieben und ein Foto des Spielplatzes zu sehen. Leider kann kein aktuelles Foto hier gepostet werden.

Patrick Chaieb
Patrick Chaieb
15. Oktober 2021 um 10:30

Vielen Dank für die zahlreichen Spenden! Wir freuen uns sehr, dass die Umsetzung des Spielplatzes bald starten kann.

Patrick Chaieb
Patrick Chaieb
7. März 2021 um 16:29

Der Elternverein Gretzenbach hat 2000.- bezahlt. Herzlichen Dank

NS
Nina Seiler
25. Februar 2021 um 09:54
Wird geladen...