Hinweis für Starter: Bitte beachtet, dass wir über die Festtage vom 22. Dezember 2025 - 5. Januar 2026 eine verlängerte Antwortzeit haben. Es kann bis zu 7 Werktage dauern, bis wir dein Projekt/Organisation prüfen können.

Diese Website verwendet Cookies. Mit der Nutzung der Website stimmst du dem Einsatz von Cookies zu. Mehr erfahren

Abstimmungscode aktiv:
Der eingegebene Code ist ungültig
Der Code wurde bereits für ein Projekt bzw. für eine Organisation verwendet. Anzeigen
Deine Stimme wurde bereits abgegeben

Neues Clubhaus FC Rheinfelden 1909

Ein Projekt aus der Region der Raiffeisenbank Möhlin

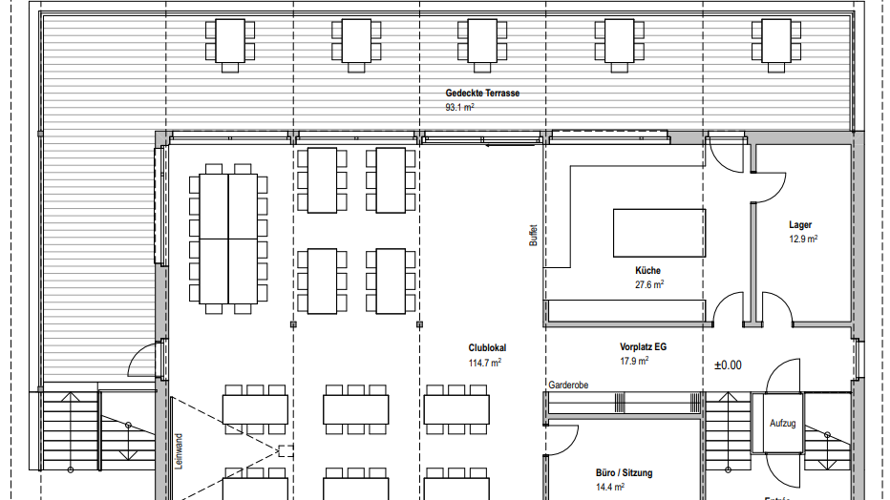
Die neue Clubbeiz, das Herz des Vereins und unsere neue Heimat, mit rund 80 Innenplätzen und einer grosszügigen Terrasse mit Blick auf unser Hauptfeld, auf dem Kinderturniere und Spiele stattfinden, soll ganz dem Thema Sport gewidmet sein. Einheimisches Holz wird bevorzugt verbaut, sodass eine heimelige Atmosphäre entsteht und sich die Vereinsmitglieder gerne in der neuen Clubbeiz aufhalten. Ein gesundes und nachhaltiges Angebot rundet das Konzept ab.

CHF 54’690
CHF 25’000
Mindestbetrag
CHF 50’000
Wunschbetrag
161
Unterstützungen

Nachfolgende Unterstützungen konnten am Projekt gewählt werden

Finanzierungszeitraum 29.10.2021 05:21 Uhr - 31.12.2021 23:59 Uhr
Realisierungszeitraum Fertigstellung: Februar 2023

Der FCR09 wächst und platzt aus allen Nähten. Aus diesem Grund erstellt der Verein zusammen mit der Stadt Rheinfelden ein neues, modernes Gebäude, in dem im Sockelgeschoss vier Garderoben Platz finden und im erhöhten Erdgeschoss Gastroräumlichkeiten entstehen. Der FCR09 ist beim Projekt verantwortlich für den Innenausbau der Gastroräumlichkeiten.

Die neue Clubbeiz soll eine Heimat für die Vereinsmitglieder werden. Gleichzeitig ist auf und rund um den Fussballplatz Schiffacker immer viel los. Gäste, Eltern, Kinder, Spaziergänger, Hundehalter, Biker und viele mehr sollen sich wohlfühlen im neuen Restaurant. Die offenen Räumlichkeiten mit der grosszügigen Terrasse eignen sich ebenfalls für Firmen- und Geburtstagsfeiern sowie Generalversammlungen von Vereinen. Abgeschieden am Waldrand stört man bestimmt niemanden, wen es etwas lauter wird.

Der FC Rheinfelden 1909 ist mit rund 480 aktiven Fussballerinnen und Fussballern, wovon rund 300 Kindern ein wichtiger Teil des sportlichen Lebens in Rheinfelden. Durch die grosse Mädchenbewegung mit über 110 Mädchen und Frauen, die bei uns Fussball spielen, hat der Verein auch eine regionale Bedeutung erlangt. Mit der neuen Clubbeiz erhoffen wir uns eine Stärkung des Vereinslebens und der Vereinsidentifikation, damit es uns in Zukunft gelingt, eine grosse Fussballfamilie zu sein.

Das mit dem Crowdfunding gesammelte Geld wird für den Innenausbau der Clubbeiz verwendet. Beleuchtung, Elektrik, Möblierung der Räumlichkeiten, eine Gastroküche - all das benötigt grosse finanzielle Mittel. Wir rechnen aktuell mit Kosten von rund CHF 250'000.00, die der Verein stemmen muss.

Mindestbetrag

Mit einem Betrag von CHF 25'000.00 sind rund 10 % der erwarteten Kosten abgedeckt. Die Differenz soll über einen Sponsorenlauf der Vereinsmitglieder, Sponsorenbeiträge der am Bau beteiligten Unternehmen sowie vorhandenes Vereinskapital beglichen werden.

Das Erreichen der Finanzierungsschwelle ermöglicht es dem Verein, die bestehende Möblierung der alten Clubbeiz zu ergänzen. Die bestehenden Tische und Stühle reichen nicht aus, um die grössere Fläche zu möblieren. Auch für die neue überdachte Terrasse benötigen wir Tische und Stühle.

Wunschbetrag

Mit diesem Betrag kann die ganze Möblierung neu zusammengestellt werden. Die in die Jahre gekommenen Stühle und Tische der alten Clubbeiz passen nicht so recht ins Bild der neuen Räumlichkeiten.

Die Stadt Rheinfelden unterstützt das durch Steck + Partner Architekten GmbH entwickelte Projekt. Die Ortsbürger von Rheinfelden stellen der Einwohnergemeinde das Baurecht kostenlos zur Verfügung.

Der FC Rheinfelden 1909 ist federführend beim Projekt.

21. Januar 2025

Neueröffnung erfolgt - Tische und Stühle angeschrieben

Liebe Unterstützerinnen, liebe Unterstützer Es ist soweit - am 20.01.2025 haben Sonja und Björn ihre "3ti Halbziit" eröffnet. Sie bieten frische, wöchentlich wechselnde Menues, Salat-Bowles und Snacks an. Mit viel Herzblut und Leidenschaft engagieren sie sich für eine liebevoll dekorierte "Clubbeiz". Die beiden gelernten Gastronomen sind Gastgeber, wie wir sie uns für unser neues Daheim wünschen - nun benötigen jedoch sie auch unsere Unterstützung und unseren Besuch in ihrer Beiz - damit sie lange und erfolgreich bei uns wirten! Mehr Informationen zu den Menues über Mittag und am Abend sowie zu den fixen Öffnungszeiten findet ihr unter www.3ti-halbziit.ch . Pünktlich zur Neueröffnung konnten wir auch endlich die Tische und Stühle beschriften - nach dem Versand der Caps und weiteren Goodies Ende 2024 war dies nun noch der letzte Schritt. Es bleibt mir nur nochmals und abschliessend ein riesiges "DANKESCHÖN" auszusprechen für euren Support und eure Geduld - "Gut Ding will Weile haben". Dies ist gleichzeitig die letzte Nachricht über diesen Kanal. Wir freuen uns, wenn ihr mit dem FCR09 verbunden bleibt - über unsere Kanäle auf Facebook oder Insta, über unsere Webseite www.fcrheinfelden.net oder natürlich am Liebsten persönlich vor Ort auf dem Schiffacker. Auf Wiedersehen und Hopp Rhyfälde!

Mehr im Projekt-Blog lesen

2 Kommentare

Tolle Sache! Ich drück' euch für den Endspurt die Daumen!

Martina Cola Wili
Martina Cola Wili
28. Dezember 2021 um 12:27

Wir sind 10 Fans! Bereits nach kurzer Zeit haben wir 10 Fans erreicht. Naja, das ist nicht unbedingt eine bemerkenswerte Leistung, aber doch immerhin Anlass um mal zu testen, wie das mit der Pinnwand funktioniert:-) Einen guten Start in die neue Woche - Hopp FCR!

Dominik Tanner
Dominik Tanner
18. Oktober 2021 um 06:53
Wird geladen...