Remarque pour les initiateurs: merci de noter que nous mettrons plus de temps à vous répondre pendant les fêtes de fin d’année, du 22 décembre 2025 au 5 janvier 2026. L’examen de ton projet / organisation pourra prendre jusqu’à sept jours ouvrables.

Ce site Web utilise des cookies. En utilisant le site Web, vous acceptez l'emploi de cookies. Pour en savoir plus

Code de vote activé :
Le code saisi n’est pas valide
Le code a déjà été utilisé pour un projet ou une organisation. Afficher
Votre vote a déjà été exprimé
CHF 1’000 Soutenu par Raiffeisen

WEIERE SAUNA - Eine Natursauna für St.Gallen

Un projet de la région de la Raiffeisenbank St. Gallen

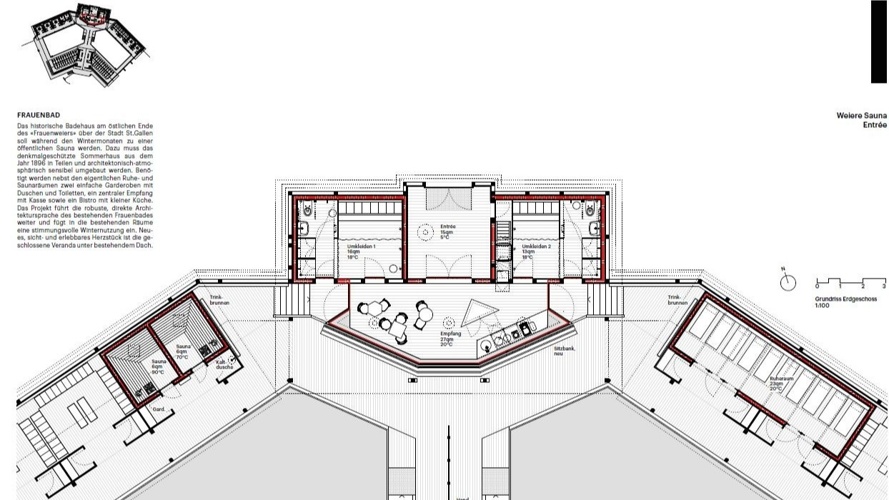
Im historischen Frauenbad Dreilinden entsteht in der einmaligen Umgebung des Waldweihers eine Wintersauna. Ruhe und Wohlbefinden stehen im Vordergrund.

Die WEIERE SAUNA wird vor Weihnachten 2020 eröffnet werden.

Die Finanzierung ist bereits zu über 90% sichergestellt. Damit die restliche Finanzierung gelingt, braucht es Ihre Unterstützung. Wir belohnen Sie beispielsweise mit einer privaten Mitternachtssauna oder mit exklusiven Saisonkarten.

CHF 117’221
CHF 100’000
Montant minimum
CHF 130’000
Montant désiré
172
Parrainages

Campagnes

Les parrainages suivants ont pu être choisis dans le cadre du projet

Période de financement 15 nov. 2019 17:30 Heure - 13 févr. 2020 00:00 Heure
Temps nécessaire à la réalisation Herbst/Winter 2020

In St.Gallen entsteht eine der schönsten und romantischsten Natur-Gewässer-Saunen, die WEIERE SAUNA. In der einmaligen Naturkulisse der Drei Weieren hoch über der Stadt und dem Bodensee, schaffen wir im historischen Badehaus des Frauenbads Dreilinden ein Ort der Ruhe und des Wohlbefindens. Und das in qualitätsvoller Architektur der St.Galler Architekten Barão-Hutter.

Der Einbau der Wintersauna erfolgt in enger Abstimmung mit dem Sport- und Hochbauamt sowie der Denkmalpflege der Stadt St.Gallen. An der Aussenhülle des Heimatstilbaus werden keine baulichen Veränderungen vorgenommen. Im Innenbereich wird auf eine schlichte Umsetzung geachtet.

Wir schaffen mit der WEIERE SAUNA für die gesamte Bevölkerung einen attraktiven Zusatznutzen im Naherholungsgebiet.

Die Sauna ist offen für alle: Wellnessfreunde, Architekturbegeisterte, Naturfreunde, Sportlerinnen, Kalt- und Warmduscher ...

Die WEIERE SAUNA ermöglicht, das wunderschöne Badehaus am romantischen Waldweiher auch ausserhalb der Badesaison in den Monaten Oktober bis April zu geniessen.

Mit einer Natursauna schliessen wir in der Saunalandschaft der Region eine Lücke.

Die WEIERE SAUNA kostet 980'000 Franken. Es braucht Einbauten für Empfang, Garderobe, Sauna und Ruheraum sowie sanitäre und technische Installationen für Warmwasser, Heizung und Isolation des denkmalgeschützten Heimatstil-Gebäudes.

Dank bereits über 150 Genossenschafterinnen und Genossenschaftern, dem Förderbeitrag der St.Galler Kantonalbank, dem Beitrag und dem Darlehen der Stadt St.Gallen sowie weiteren Darlehen von Genossenschafterinnen und Genossenschafter sind gegen 90% der Finanzierung zugesichert.

Mit Ihrer Unterstützung schliessen wir die Finanzierungslücke und die WEIERE SAUNA wird definitiv realisiert.

Montant désiré

Im Idealfall schaffen wir es, das Finanzierungsziel von 130'000 CHF zu erreichen. Damit wäre nicht nur die Realisierung der WEIERE SAUNA gesichert, sondern auch der Betrieb für die Anfangszeit auf ein nachhaltiges Fundament gestellt. Wenn wir diesen Betrag erreichen, können wir auf einen Teil der zugesagten Darlehen verzichten und sparen einen wesentlichen Anteil an Zinskosten. Vielen Dank für euren Beitrag, damit wir das ganze Finanzierungsziel gemeinsam erreichen.

Unser Projekt ist aus zwei unabhängigen Initiativen um den Frauenschwimmclub St.Gallen und von Anwohnerinnen und Anwohnern aus dem angrenzenden Quartier St.Georgen entstanden.

Die Initiantinnen und Initianten Rolf Geiger, Monika Kurath, Annette Nitsche, Barbara Ochsner und Fridolin Schwitter haben dazu die WEIERE SAUNA GENOSSENSCHAFT gegründet.

Bereits über 150 Genossenschafterinnen und Genossenschafter tragen das Projekt mit einem Beitrag von mindestens 1000 Franken mit!

Weitere wichtige Unterstützerinnen und Unterstützer:

  • St.Galler Kantonalbank: grosszügiger Projektbeitrag im Rahmen des 150 Jahre
  • Stadt St.Gallen: Sportamt und Hochbauamt bei Finanzierung, Planung und Umsetzung
  • Beéry Elisabeth, Vorstandsmitglied im Vorprojekt
  • Griesfelder Roman, finanzielle Beratung
  • Engeler Martin, architektonische Beratung
  • Storrer Bettina, betriebswirtschaftliche Beratung (Sauna am See, Zürich)
  • Gossolt Marcus und Maurus Hofer, Auftritt (Alltag Agentur)
  • Huber Urs, Buchhaltung (büro ö)
  • Schneider Gerold, Support Crowdfunding
  • Baumberger Andreas, Film
  • Hufenus Ralph, Filmmusik
  • Barnetta Tranquillo, Marcus Schäfer, Elisabeth Beéry, Claudio Loser, Tamea Wissmann, Leora Wissmann (Protagonistinnen und Protagonisten Film)
  • viele weitere freiwillige Helferinnen und Helfer
25 septembre 2021

TAG DER OFFENEN TÜRE

Liebe Unterstützer*innen Morgen Sonntag, 26. September 2021 von 12:00 bis 15:00 Uhr öffnen wir die Türe der WEIERE SAUNA für euch und die interessierte Bevölkerung. Am 1. Oktober 2021 geht es dann richtig los. Die aktuellen Öffnungszeiten findet ihr auf www.weieresauna.ch . Wir freuen uns, wenn wir euch morgen oder ab Saisonstart endlich eure MERCIs überreichen dürfen. Herzliche Grüsse das WEIERE SAUNA Team

Lire la suite dans le blog du projet

8 Commentaires

Leider können wir nicht versprechen, dass wir die Idee der Mitternachtssauna zu einem späteren Zeitpunkt wieder aufnehmen. Wir werden erst mal schauen müssen, wie sich der ordentliche Betrieb entwickelt.

Team WEIERE SAUNA
Team WEIERE SAUNA
7 janvier 2020 à 11:03

Beatrice Brechbühl Ich würde gerne Genosseschafterin werden, finde aber das Mitternachts-Sauna-Angebot so toll. Kann man dies als Genossenschafterin auch später kaufen?

BB
Beatrice Brechbühl
6 janvier 2020 à 13:20

Wieso nicht? Heute ist es aber zu früh, darüber zu entscheiden. Wir werden erst mal schauen müssen, wer unsere Gäste sind. Dann gilt es, die Bedürfnisse bestmöglich zu organisieren.

Team WEIERE SAUNA
Team WEIERE SAUNA
29 décembre 2019 à 14:56

tout afficher

Chargement en cours...

Partenaires