Nota per gli ideatori: ricordiamo che durante le festività dal 22 dicembre 2025 al 5 gennaio 2026 sono previsti tempi di risposta più lunghi. La verifica del tuo progetto/della tua organizzazione da parte nostra potrebbe richiedere fino a 7 giorni lavorativi.

Questo sito web impiega cookie. Utilizzando il sito ne approvi l'impiego. Maggiori informazioni

Codice di voto attivato:
Il codice inserito non è valido
Il codice è già stato utilizzato per un progetto o per un’organizzazione. Visualizza
Il tuo voto è già stato espresso
CHF 1’000 Sostenuto par Raiffeisen

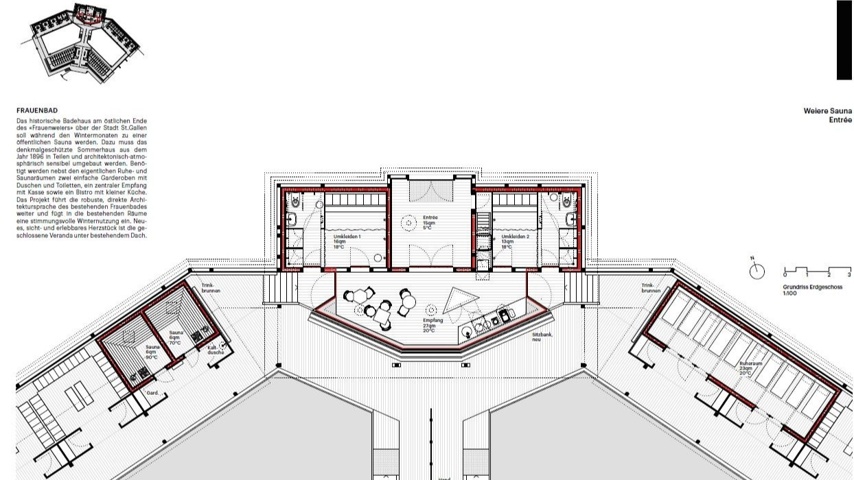
WEIERE SAUNA - Eine Natursauna für St.Gallen

Un progetto della regione della Raiffeisenbank St. Gallen

Im historischen Frauenbad Dreilinden entsteht in der einmaligen Umgebung des Waldweihers eine Wintersauna. Ruhe und Wohlbefinden stehen im Vordergrund.

Die WEIERE SAUNA wird vor Weihnachten 2020 eröffnet werden.

Die Finanzierung ist bereits zu über 90% sichergestellt. Damit die restliche Finanzierung gelingt, braucht es Ihre Unterstützung. Wir belohnen Sie beispielsweise mit einer privaten Mitternachtssauna oder mit exklusiven Saisonkarten.

CHF 117’221
CHF 100’000
Importo minimo
CHF 130’000
Importo desiderato
172
Sostegni

Campagne

Per il progetto è stato possibile selezionare i seguenti sostegni

Periodo di finanziamento 15 nov 2019 17:30 ore - 13 feb 2020 00:00 ore
Periodo di realizzazione Herbst/Winter 2020

In St.Gallen entsteht eine der schönsten und romantischsten Natur-Gewässer-Saunen, die WEIERE SAUNA. In der einmaligen Naturkulisse der Drei Weieren hoch über der Stadt und dem Bodensee, schaffen wir im historischen Badehaus des Frauenbads Dreilinden ein Ort der Ruhe und des Wohlbefindens. Und das in qualitätsvoller Architektur der St.Galler Architekten Barão-Hutter.

Der Einbau der Wintersauna erfolgt in enger Abstimmung mit dem Sport- und Hochbauamt sowie der Denkmalpflege der Stadt St.Gallen. An der Aussenhülle des Heimatstilbaus werden keine baulichen Veränderungen vorgenommen. Im Innenbereich wird auf eine schlichte Umsetzung geachtet.

Wir schaffen mit der WEIERE SAUNA für die gesamte Bevölkerung einen attraktiven Zusatznutzen im Naherholungsgebiet.

Die Sauna ist offen für alle: Wellnessfreunde, Architekturbegeisterte, Naturfreunde, Sportlerinnen, Kalt- und Warmduscher ...

Die WEIERE SAUNA ermöglicht, das wunderschöne Badehaus am romantischen Waldweiher auch ausserhalb der Badesaison in den Monaten Oktober bis April zu geniessen.

Mit einer Natursauna schliessen wir in der Saunalandschaft der Region eine Lücke.

Die WEIERE SAUNA kostet 980'000 Franken. Es braucht Einbauten für Empfang, Garderobe, Sauna und Ruheraum sowie sanitäre und technische Installationen für Warmwasser, Heizung und Isolation des denkmalgeschützten Heimatstil-Gebäudes.

Dank bereits über 150 Genossenschafterinnen und Genossenschaftern, dem Förderbeitrag der St.Galler Kantonalbank, dem Beitrag und dem Darlehen der Stadt St.Gallen sowie weiteren Darlehen von Genossenschafterinnen und Genossenschafter sind gegen 90% der Finanzierung zugesichert.

Mit Ihrer Unterstützung schliessen wir die Finanzierungslücke und die WEIERE SAUNA wird definitiv realisiert.

Importo desiderato

Im Idealfall schaffen wir es, das Finanzierungsziel von 130'000 CHF zu erreichen. Damit wäre nicht nur die Realisierung der WEIERE SAUNA gesichert, sondern auch der Betrieb für die Anfangszeit auf ein nachhaltiges Fundament gestellt. Wenn wir diesen Betrag erreichen, können wir auf einen Teil der zugesagten Darlehen verzichten und sparen einen wesentlichen Anteil an Zinskosten. Vielen Dank für euren Beitrag, damit wir das ganze Finanzierungsziel gemeinsam erreichen.

Unser Projekt ist aus zwei unabhängigen Initiativen um den Frauenschwimmclub St.Gallen und von Anwohnerinnen und Anwohnern aus dem angrenzenden Quartier St.Georgen entstanden.

Die Initiantinnen und Initianten Rolf Geiger, Monika Kurath, Annette Nitsche, Barbara Ochsner und Fridolin Schwitter haben dazu die WEIERE SAUNA GENOSSENSCHAFT gegründet.

Bereits über 150 Genossenschafterinnen und Genossenschafter tragen das Projekt mit einem Beitrag von mindestens 1000 Franken mit!

Weitere wichtige Unterstützerinnen und Unterstützer:

  • St.Galler Kantonalbank: grosszügiger Projektbeitrag im Rahmen des 150 Jahre
  • Stadt St.Gallen: Sportamt und Hochbauamt bei Finanzierung, Planung und Umsetzung
  • Beéry Elisabeth, Vorstandsmitglied im Vorprojekt
  • Griesfelder Roman, finanzielle Beratung
  • Engeler Martin, architektonische Beratung
  • Storrer Bettina, betriebswirtschaftliche Beratung (Sauna am See, Zürich)
  • Gossolt Marcus und Maurus Hofer, Auftritt (Alltag Agentur)
  • Huber Urs, Buchhaltung (büro ö)
  • Schneider Gerold, Support Crowdfunding
  • Baumberger Andreas, Film
  • Hufenus Ralph, Filmmusik
  • Barnetta Tranquillo, Marcus Schäfer, Elisabeth Beéry, Claudio Loser, Tamea Wissmann, Leora Wissmann (Protagonistinnen und Protagonisten Film)
  • viele weitere freiwillige Helferinnen und Helfer
25 settembre 2021

TAG DER OFFENEN TÜRE

Liebe Unterstützer*innen Morgen Sonntag, 26. September 2021 von 12:00 bis 15:00 Uhr öffnen wir die Türe der WEIERE SAUNA für euch und die interessierte Bevölkerung. Am 1. Oktober 2021 geht es dann richtig los. Die aktuellen Öffnungszeiten findet ihr auf www.weieresauna.ch . Wir freuen uns, wenn wir euch morgen oder ab Saisonstart endlich eure MERCIs überreichen dürfen. Herzliche Grüsse das WEIERE SAUNA Team

Per saperne di più, leggete il blog del progetto

8 Kommentare

Leider können wir nicht versprechen, dass wir die Idee der Mitternachtssauna zu einem späteren Zeitpunkt wieder aufnehmen. Wir werden erst mal schauen müssen, wie sich der ordentliche Betrieb entwickelt.

Team WEIERE SAUNA
Team WEIERE SAUNA
7 gennaio 2020 alle ore 11:03

Beatrice Brechbühl Ich würde gerne Genosseschafterin werden, finde aber das Mitternachts-Sauna-Angebot so toll. Kann man dies als Genossenschafterin auch später kaufen?

BB
Beatrice Brechbühl
6 gennaio 2020 alle ore 13:20

Wieso nicht? Heute ist es aber zu früh, darüber zu entscheiden. Wir werden erst mal schauen müssen, wer unsere Gäste sind. Dann gilt es, die Bedürfnisse bestmöglich zu organisieren.

Team WEIERE SAUNA
Team WEIERE SAUNA
29 dicembre 2019 alle ore 14:56

Visualizza tutti

Caricamento in corso...

Partner