Nota per gli ideatori: ricordiamo che durante le festività dal 22 dicembre 2025 al 5 gennaio 2026 sono previsti tempi di risposta più lunghi. La verifica del tuo progetto/della tua organizzazione da parte nostra potrebbe richiedere fino a 7 giorni lavorativi.

Questo sito web impiega cookie. Utilizzando il sito ne approvi l'impiego. Maggiori informazioni

Codice di voto attivato:
Il codice inserito non è valido
Il codice è già stato utilizzato per un progetto o per un’organizzazione. Visualizza
Il tuo voto è già stato espresso

Umbau Mehrzweckraum BURG

Un progetto della regione della Raiffeisenbank Basel

Seit 1995 bespielt der Quartiertreffpunkt (QTP) Wettstein im Werkraum Warteck pp einen schönen Raum in der ehemaligen Brauerei. In all dieser Zeit hat der Verein mit bescheidenen Mitteln die Infrastruktur und das Inventar Jahr für Jahr aufgebaut. Heute hat der Raum die Qualität eines bunten Flickwerks, das über die vielen Jahre entstanden ist.
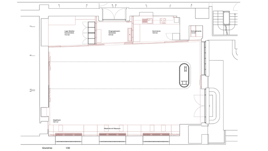
Auf Grund der zunehmenden Vielfalt der Nutzung des Raumes und der in die Jahre gekommen Infrastruktur ist ein genereller Umbau mit einem professionellen Konzept notwendig.
So soll der Raum wieder für alle attraktiver werden; insbesondere für unsere Hauptzielgruppe für Senior*innen und Familien mit Kindern und die Kurse. Dafür braucht es u.a. eine (blickdichte) Garderobe, Möbellager und sonstiger Stauraum, (feste) Sitzmöglichkeiten mit Armlehnen, neue Küche und Vorhänge, Spielzeugkisten und Tische auf Rollen sowie Kletter- und Rückzugmöglichkeiten

CHF 5’103
CHF 5’000
Importo minimo
CHF 20’000
Importo desiderato
44
Sostegni

Per il progetto è stato possibile selezionare i seguenti sostegni

Periodo di finanziamento 12 feb 2024 15:03 ore - 21 apr 2024 23:59 ore
Periodo di realizzazione Im Sommer 2024 wird gebaut!

Aggiornamenti del progetto

7 agosto 2024 Einweihung umgestaltete BURG 30.8.2024

Endlich ist es soweit: die BURG zeigt sich in neuem Gewand. Dazu laden wir alle zu einem Apéro um 17Uhr ein, um die neue BURG bestaunen zu können!

Ab 18Uhr führen wir das Stadtpicknick direkt vor und in der BURG durch! Wie immer organisieren wir dafür kühle Getränke und einen Grill. Sachen für auf den Grill kann jede*r für sich selber mitbringen. Anlässlich des speziellen Anlasses würden wir vorschlagen, dass wir die mitgebrachten Salate teilen und so ein buntes Salatbuffet haben.

Die Zielgruppe des QTP Wettstein ist im Laufe der letzten fast 30 Jahren vielfältiger geworden. Unser Mehrzweckraum BURG ist aber insbesondere für ältere Menschen und kleine Kinder - unsere beiden Hauptzielgruppe - nicht altersgemäss.

Erstere können beispielsweise das schwere und hochgestapelte Mobiliar oft nicht selber bedienen, wodurch ein Ausbau der Aktivitäten von Senior*innen schwierig ist. Zudem fehlen aktuell (fixe) Sitzmöglichkeiten mit Armlehnen für Personen, welche nicht mehr so gut zu Fuss sind. Dank folgenden weiteren Neuerungen wird der Raum auch für ältere Personen eigenständig nutzbar sein: Tische auf Rollen, Garderobe mit Sitzmöglichkeit, fixe Sitzmöglichkeiten mit Armlehnen im Raum und klappbare Stühle mit Lehnen, die einzeln versorgt werden können.

Auch für kleine Kinder ist der jetzige Zustand des Raumes nicht ideal. So ist beispielsweise der Stauraum so gering, so dass die Spielsachen wie in einem Tetris Spiel richtig versorgt werden müssen. Hält sich jemand nicht an diese Ordnung, dann können die Spielsachen beim Öffnen der Schränke runterfallen. Dies und die Lagerung der Materialien in Schränken verhindert, dass die Kinder sich eigenständig ihre Spielsachen holen und versorgen können.
Neu sollen die meisten Spielsachen auf Augenhöhe der Kinder in Schubladen auf Rollen verstaut werden und für das grössere Mobiliar (also beispielsweise für die Kletterbögen und Kindertische) gibt es ein Lager.
Dank den Sitzstufen entstehen zudem Kletter- und Rückzugmöglichkeiten.

Der Vorhang und zum Teil die Küche haben ihr Verfallsdatum erreicht. Wenn immer möglich soll das Mobiliar aber aus Nachhaltigkeitsgründen weiterverwendet oder umgenutzt werden. So sollen alle Holzschränke auseinander gebaut werden, um damit die Tablare der neuen Küche und des Lagers und Wandschranks zu bauen.
Alle Spender*innen werden - auf Wunsch - auf einem Plakat und ab 1000.- auf einer Dankesplakette im Raum genannt.

Mit dem Umbau wird ein Mehrzweckraum geschaffen, welcher der vielfältigen Nutzung des Raumes Rechnung trägt und in welchem sich alle willkommen fühlen sollen!
Insbesondere die Bedürfnisse von kleinen Kindern und Senior*innen - der Hauptzielgruppe der Angebote vom QTP Wettstein - werden berücksichtigt. Sie sollen den Raum möglichst selbstständig nützen können und sich darin wohlfühlen.

Ein Umbau des Mehrzweckraums des Quartiertreffpunkts Wettstein kommt der gesamten Bevölkerung zugute. Denn darin finden niederschwellige Angebote für alle statt. Zudem kann der Raum auch für private Feiern, Kurse oder sonstige Veranstaltungen kostengünstig gemietet werden. Alle Spender*innen werden - auf Wunsch - auf einem Plakat und ab einem Betrag von 1000.- auf einer Dankesplakette im Raum genannt.

Das Geld wird vollständig in den Umbau des Mehrzweckraums investiert. Wenn mehr als 20'000 CHF zusammenkommen, kann ein Gastro-Kochfeld eingebaut werden und/oder weitere Gegenstände wie beispielsweise das Plastikgeschirr erneuert werden. Sollte weniger als 20'000 CHF zusammenkommen, wird der Umbau dennoch durchgeführt, jedoch können nicht alle geplanten Maßnahmen umgesetzt werden.

Importo minimo

Ein wichtiger Teil des neuen Mobiliars kann mit dem Mindestbetrag organisiert werden. Das ist wunderbar!
Einige Anschaffungen müssen aber verschoben und es müssen Abstriche gemacht werden. So wird es in der neuen Küche beispielsweise weiterhin Haushaltherdplatten geben. Grössere Herdplatten, welche ein einfacheres Kochen für viele Personen oder Angebote wie Kochkurse ermöglichen, sind so leider nicht finanzierbar.

Importo desiderato

Wenn das geammte Geld zusammen kommt, dann können vorraussichtlich alle gewünschten Neuanschaffungen und Umbauten realisiert werden!

Der Quartiertreffpunkt (QTP) Wettstein setzt sich für das soziale Zusammenleben im Wettsteinquartier ein. Er unterstützt soziale und kulturelle Aktivitäten, die mit und für die Quartierbevölkerung umgesetzt werden. Dazu gehören wöchentliche Angebote wie das Café Balance für Senior*innen, der offene (Gross-)Eltern-Kind-Treff oder der Dorfplatz für geflüchtete Menschen. Im Raum finden auch einzelne Veranstaltungen wie die ReparierBar, der Familientheatersonntag, der Laternenumzug etc. statt. Gemeinsam mit der Quartierbevölkerung setzen wir ihre Anliegen in Projekten für ein lebendiges Quartierleben um.

Caricamento in corso...