Remarque pour les initiateurs: merci de noter que nous mettrons plus de temps à vous répondre pendant les fêtes de fin d’année, du 22 décembre 2025 au 5 janvier 2026. L’examen de ton projet / organisation pourra prendre jusqu’à sept jours ouvrables.

Ce site Web utilise des cookies. En utilisant le site Web, vous acceptez l'emploi de cookies. Pour en savoir plus

Code de vote activé :
Le code saisi n’est pas valide
Le code a déjà été utilisé pour un projet ou une organisation. Afficher
Votre vote a déjà été exprimé

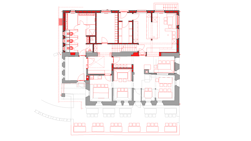
Gesamterneuerung Grialetsch-Hütte SAC

Un projet de la région de la Raiffeisenbank Prättigau-Davos

Die Grialetsch-Hütte SAC soll im Jahr 2021 umfassend saniert und mit einem funktionalen Anbau ergänzt werden. Es entstehen Kosten von rund 3,25 Mio. Franken. Die Finanzierung eines derartigen Bauvorhabens ist eine grosse Herausforderung. Mit einem Beitrag kann die Finanzierung sichergestellt werden und die Gesamterneuerung erfolgen.

CHF 30’015
CHF 10’000
Montant minimum
CHF 100’000
Montant désiré
74
Parrainages
Copiez le code source dans votre site web pour intégrer le widget du projet ou organisation (faites attention que votre système CMS exécute le scripte Java)