Nota per gli ideatori: ricordiamo che durante le festività dal 22 dicembre 2025 al 5 gennaio 2026 sono previsti tempi di risposta più lunghi. La verifica del tuo progetto/della tua organizzazione da parte nostra potrebbe richiedere fino a 7 giorni lavorativi.

Questo sito web impiega cookie. Utilizzando il sito ne approvi l'impiego. Maggiori informazioni

Codice di voto attivato:
Il codice inserito non è valido
Il codice è già stato utilizzato per un progetto o per un’organizzazione. Visualizza
Il tuo voto è già stato espresso

Restaurierung Alp Tamangur Dadora

Un progetto della regione della Raiffeisenbank Engiadina Val Müstair

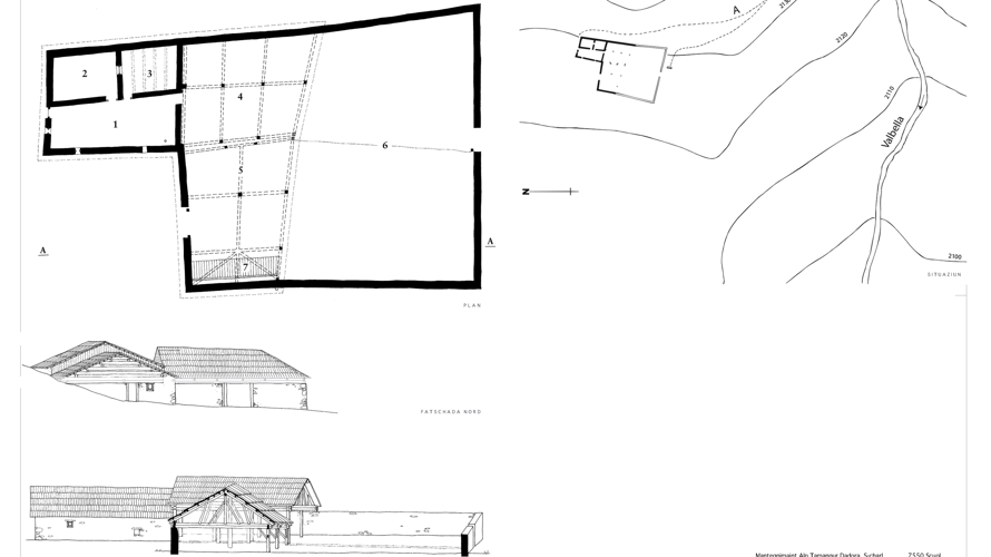
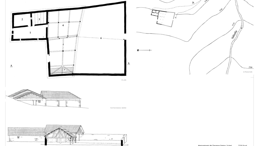
Die Alp Tamangur Dadora, erbaut 1777, ist auf 2120 M.ü.M. im S-charltal situiert. Die Alpstafel besteht aus zwei grossen, mit Holzkonstruktionen überdachten Unterständen und Sennereigebäude. Tamangur Dadora stellt eine frühe, in ihrer Typologie kaum mehr vorhandenen Form der Genossenschaftsalp mit Stafel dar und bildet die Vorform der später errichteten Alpen mit Sennerei und Stallgebäude. Die Alp ist in den letzten Jahren mehr und mehr verfallen und benötigt dringend eine Renovierung.

CHF 76’850
CHF 60’000
Importo minimo
CHF 100’000
Importo desiderato
157
Sostegni

Per il progetto è stato possibile selezionare i seguenti sostegni

Periodo di finanziamento 29 dic 2020 17:12 ore - 1 apr 2021 23:59 ore
Periodo di realizzazione April - August 2021

Wir sind eine Gruppe Privater und Institutionen, die sich mit viel Herzblut dafür einsetzt, die Alp Tamangur Dadora als wertvolles historisches Gebäude in seiner seltenen Bauform für zukünftige Generationen zu erhalten. Die Alp ist ein wertvoller Zeitzeuge unserer bäuerlichen Kultur und eine Bereicherung für Einheimische und Gäste. Sie soll wieder zum Leben erweckt und sowohl ihrer ursprünglichen wie auch neuen Aufgaben zugeführt werden.

Mit dem Sanierungsprojekt streben wir den Erhalt dieses wunderschönen kulturhistorisch wichtigen Gebäudes für nachfolgende Generationen an. So ist die Alp Tamangur Dadora weiterhin als Unterstand für Tier und Material dienlich, jedoch auch als Unterstand für Schulungszwecke, Umwelteinsätze zur Erhaltung der Biodiversität, für Kinder, Jugendliche und Erwachsene in Zusammenarbeit mit der Fundaziun Pro Terra Engiadina, dem Biosphärenreservat und den Wildnispädagogen.
Dank ihres Standortes unmittelbar neben dem höchstgelegenen Arvenwald Europas und am Wanderweg S-charl – Val Müstair eignet sich die Alp hervorragend als Rastplatz und Schutzunterstand für Wanderer und Tourengänger.

Das S-charltal wird von Einheimischen als Geheimtipp für Ruhe und Erholung bezeichnet. Mit Ihrer Spende verhelfen Sie der Alp Tamangur Dadora, welche im Herzen des Tales liegt, zu neuem Leben. Durch Ihre Unterstützung kann die einzigartige seltene Bauform aufrechterhalten bleiben. Ebenfalls tragen Sie zu Erhaltung eines wertvollen Kulturobjekts für die jetzige und nächste Generation bei.

Es fehlen noch rund 100'000 CHF, um die letzte Etappe der Renovierung zu verwirklichen. Hierbei handelt es sich um ein Teil der Trockenmauer im Hof, den Fertigputz an den Wänden, die Inneneinrichtung der Käserei mit Käsekessel, die Treppe ins Dachgeschoss, die Pflästerung in der Sennerei, die Instandstellung der bestehenden Pflästerung im Hof, der Futterstellen mit Krippen und der Türen.
Durch Ihre Unterstützung und die Fertigstellung der Renovierungsarbeiten kann einer der letzten Zeitzeugen der hiesigen Berglandwirtschaft wieder zum Leben erweckt werden. Falls wir die noch benötigten finanziellen Mittel erreichen und die Arbeiten fertiggestellt werden können, steht einer Einweihungsfeier der Alp Tamangur Dadora im Herbst 2021 nichts mehr im Wege.

Importo minimo

Jede Spende hilft uns ein Teil der letzte Etappe der Renovierung zu realisieren.

Importo desiderato

Mit dem Finanzierungsziel kann das ganze Projekt in seinem ganzen Ausmass finanziert werden.

Hinter unserem Projekt stehen eine Reihe Privater, Firmen und Institutionen, insbesondere die Alpgemeinschaft Corporaziun d’Alp Praditschöl unter der Initiative von Barbla Conrad, die Pro Terra Engiadina mit Angelika Abderhalden, die Architektin Mengia Mathis, die Gemeinde Scuol, die Denkmalpflege Graubünden sowie die Stiftung Landschaftsschutz Schweiz.

2 luglio 2022

Alp Tamangur Dadora; Noch ein Up-Date

Wer die restaurierte Alp Tamangur Dadora und die Umgebung noch intensiver, nämlich mit dem Riechsinn erkunden will, hat auch die Möglichkeit an einem Riechworkshop; Immer der Nase nach, die Landschaft riechend entdecken, teilzunehmen. Der erste Kurs findet am 13 Juli statt. Mehr Infos auf www.somalgors74.ch/upcoming Sicher gibt es immer wieder Möglichkeiten, sich dort aktiv zu verweilen. Ein schöner Sommer wünschen wir euch allen.

Per saperne di più, leggete il blog del progetto

Caricamento in corso...

Partner