Remarque pour les initiateurs: merci de noter que nous mettrons plus de temps à vous répondre pendant les fêtes de fin d’année, du 22 décembre 2025 au 5 janvier 2026. L’examen de ton projet / organisation pourra prendre jusqu’à sept jours ouvrables.

Ce site Web utilise des cookies. En utilisant le site Web, vous acceptez l'emploi de cookies. Pour en savoir plus

Code de vote activé :
Le code saisi n’est pas valide
Le code a déjà été utilisé pour un projet ou une organisation. Afficher
Votre vote a déjà été exprimé

Der Flugplatz Schänis braucht ein nachhaltiges Betriebsgebäude

Un projet de la région de la Raiffeisenbank Schänis-Amden

Für Piloten und Passagiere ist Schänis der Startpunkt für gegen 2000 Flüge in die Glarner Alpen, die Churfirsten, ins Engadin oder ins Wallis. Das Restaurant wird von gegen 20‘000 Gästen besucht und Kinder geniessen den Abenteuerspielplatz.
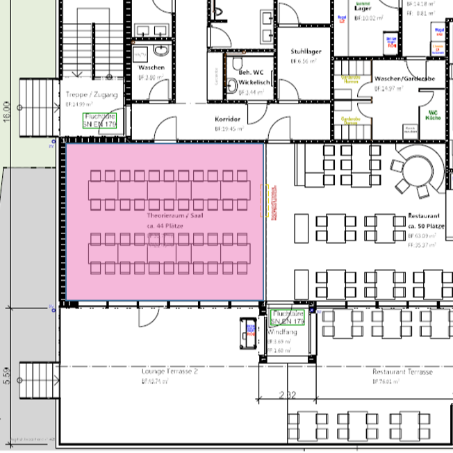
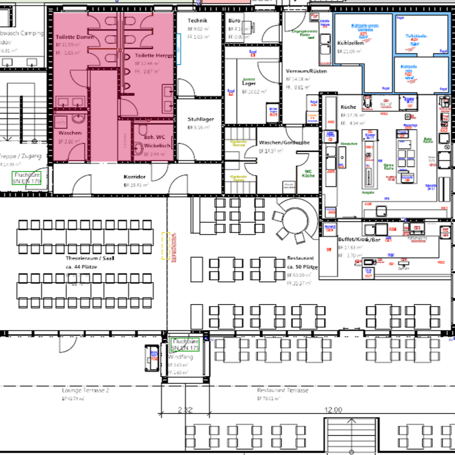
Der Flugplatz Schänis braucht nun dringend ein neues Flugplatzgebäude, welches mit den neuesten Technologien isoliert und beheizt wird und mit moderner Küche und Heizung ausgerüstet werden soll. Die gesamten Kosten für den Neubau liegen bei 2.2 Mio

CHF 105’125
CHF 100’000
Montant minimum
CHF 200’000
Montant désiré
194
Parrainages

Spatenstich: Es geht los!

Simon Stauber
Simon Stauber
30 janvier 2019

Liebe Unterstützerinnen und Unterstützer

Gestern war Spatenstich auf dem Flugplatz Schänis!

Einige Tage vor dem Spatenstich hat Tiefbauer JMS Risi schon mit der Pfählung begonnen. Etwa 55 Pfähle sind nötig um die Stabilität des Gebäudes auf dem moorigen Untergrund der Linthebene sicherzustellen.

Marcel Rüegg von Rüegg Holzbau erstaunte das grosse Interesse am Spatenstich: 45 Aktionäre, Gönner und Unternehmer hatten sich dazu eingefunden. Präsident Matthew Reiter von der Alpinen Segelflugschule zeigte sich erfreut über den Start der Bauarbeiten: „Wir sind glücklich, dass wir heute nach einer langen Vorbereitungszeit mit dem Bau beginnen können“.

Nach der Pfählung beginnt der Bau des neuen Flugplatzgebäudes mit Restaurant. Dachdecker Roth wird das Gerüst bauen und wenn es kalt und trocken bleibt wird Holzbauer Rüegg mit dem Aufrichten der neuen Gebäudehülle beginnen.

Let's go!
Simon

Une erreur est survenue lors de l'enregistrement.

Les parrainages suivants ont pu être choisis dans le cadre du projet